Lot 52 No.2 Hill Street, Burnside

Download PDF

Lot 52 No.2 Hill Street, Burnside


Fixed Price House & Land Package: $1,545,000


Torrens Titled Allotment in Prestigious Burnside

A rare opportunity to secure 374m² of prime, flat land in one of Adelaide’s most sought-after suburbs. With a frontage of approximately 8.53m and depth of 43.87m (approx.), this allotment is ideal for a stylish and low-maintenance new build.

Perfect for downsizers, executive couples, and young families, this location is zoned for the highly regarded Burnside Primary School and Glenunga International High School.


This package offers a fully fixed price, high-quality build with Rossdale Homes. Planning approval has already been obtained for a thoughtfully designed 3-bedroom plus study floor plan. Designed with both practicality and simplicity in mind, you can choose to proceed as-is (saving months of planning and pre-construction) or make design changes to suit your lifestyle. You could be in your new home as early as late 2026.

 

  • Fixed Price Guarantee – No builder variations
  • Footings as per engineering & removal of excess soil
  • Compliant with NCC 2022 (National Construction Code)
  • Hebel construction with 3-coat render finish, Scyon Linea & Axon cladding
  • Colorbond steel roof & panel-lift carport door with remote
  • Termi Mesh termite barrier
  • 2340mm high doors & XVP11 front door
  • Square set ceilings throughout
  • Floor-to-ceiling tiling in bathroom & ensuite
  • Frameless shower screens (Series 1000)
  • Premium flooring: carpet to bedrooms, vinyl to living, tiling to porch & alfresco
  • Designer kitchen with 20mm Caesarstone (silica-free) benchtops, Caroma undermount sink, Alder tapware, walk-in pantry, & outdoor kitchen to alfresco
  • Appliances: 900mm Westinghouse oven & cooktop, retractable rangehood, Miele dishwasher, Rheem continuous flow HWS
  • Samsung ducted reverse-cycle air conditioning
  • Modern bathrooms with Clark bath, Caroma fittings, & quality vanities
  • Custom storage: WIR to master, built-in robes to bedrooms 2 & 3
  • Energy efficiency: R5.0 ceiling insulation, R2.5 external walls, R2.0 internal walls
  • LED downlights, USB charger points, TV points, NBN provisions

 

This is an exclusive chance to create your dream home in Burnside — combining the charm of the Eastern suburbs with the convenience of a low-maintenance, architecturally designed home.

Contact us today to secure this rare Burnside house & land package before it’s gone.

 

 

Disclaimer: All care has been taken in the preparation of this material. No responsibility is taken for any errors or omissions. Details are subject to change without notification. Images for illustration purposes only. E&OE.


WD110825 1 flipped

House & Land Package


DS 25149WD 01 web flipped

Lot 52 No.2 Hill Street, Burnside

Fixed Priced $1,545,000

Details

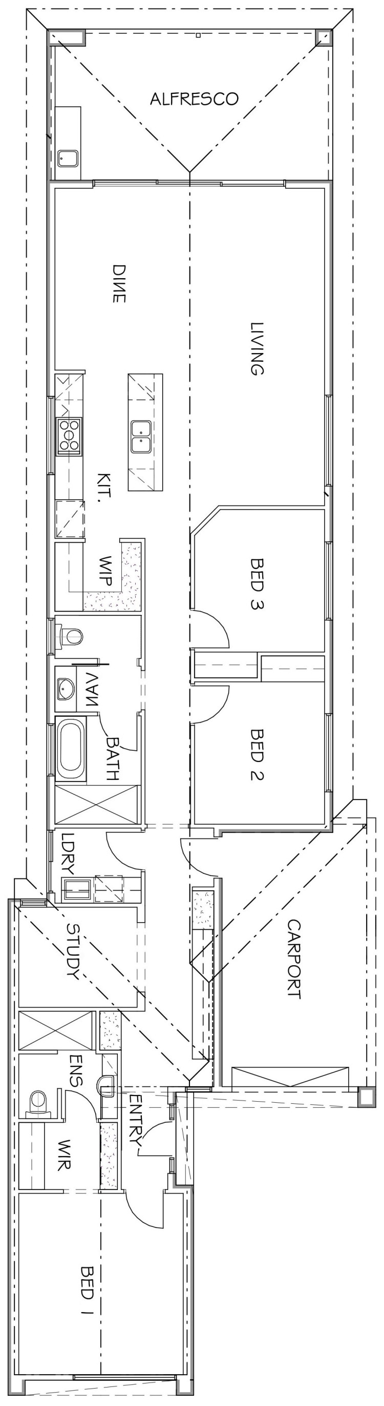
3
Bed
2
Bth
1
Car

Area Total: 203 m2
Living: 156 m2
Width: 8.50 m
Depth: 31.65 m
Location: East

This Package Includes


Fixed Price House & Land Package: $1,545,000


Torrens Titled Allotment in Prestigious Burnside

A rare opportunity to secure 374m² of prime, flat land in one of Adelaide’s most sought-after suburbs. With a frontage of approximately 8.53m and depth of 43.87m (approx.), this allotment is ideal for a stylish and low-maintenance new build.

Perfect for downsizers, executive couples, and young families, this location is zoned for the highly regarded Burnside Primary School and Glenunga International High School.


This package offers a fully fixed price, high-quality build with Rossdale Homes. Planning approval has already been obtained for a thoughtfully designed 3-bedroom plus study floor plan. Designed with both practicality and simplicity in mind, you can choose to proceed as-is (saving months of planning and pre-construction) or make design changes to suit your lifestyle. You could be in your new home as early as late 2026.

 

  • Fixed Price Guarantee – No builder variations
  • Footings as per engineering & removal of excess soil
  • Compliant with NCC 2022 (National Construction Code)
  • Hebel construction with 3-coat render finish, Scyon Linea & Axon cladding
  • Colorbond steel roof & panel-lift carport door with remote
  • Termi Mesh termite barrier
  • 2340mm high doors & XVP11 front door
  • Square set ceilings throughout
  • Floor-to-ceiling tiling in bathroom & ensuite
  • Frameless shower screens (Series 1000)
  • Premium flooring: carpet to bedrooms, vinyl to living, tiling to porch & alfresco
  • Designer kitchen with 20mm Caesarstone (silica-free) benchtops, Caroma undermount sink, Alder tapware, walk-in pantry, & outdoor kitchen to alfresco
  • Appliances: 900mm Westinghouse oven & cooktop, retractable rangehood, Miele dishwasher, Rheem continuous flow HWS
  • Samsung ducted reverse-cycle air conditioning
  • Modern bathrooms with Clark bath, Caroma fittings, & quality vanities
  • Custom storage: WIR to master, built-in robes to bedrooms 2 & 3
  • Energy efficiency: R5.0 ceiling insulation, R2.5 external walls, R2.0 internal walls
  • LED downlights, USB charger points, TV points, NBN provisions

 

This is an exclusive chance to create your dream home in Burnside — combining the charm of the Eastern suburbs with the convenience of a low-maintenance, architecturally designed home.

Contact us today to secure this rare Burnside house & land package before it’s gone.

 

 

House & Land Package


Lot 52 No.2 Hill Street, Burnside

Package Priced from $1,545,000

WD110825 1 flipped