27 Schomburgk Drive, Gawler East
FIXED Price Customised Home and Land package with most of the work done already!
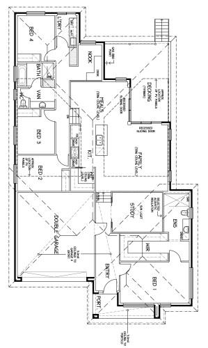
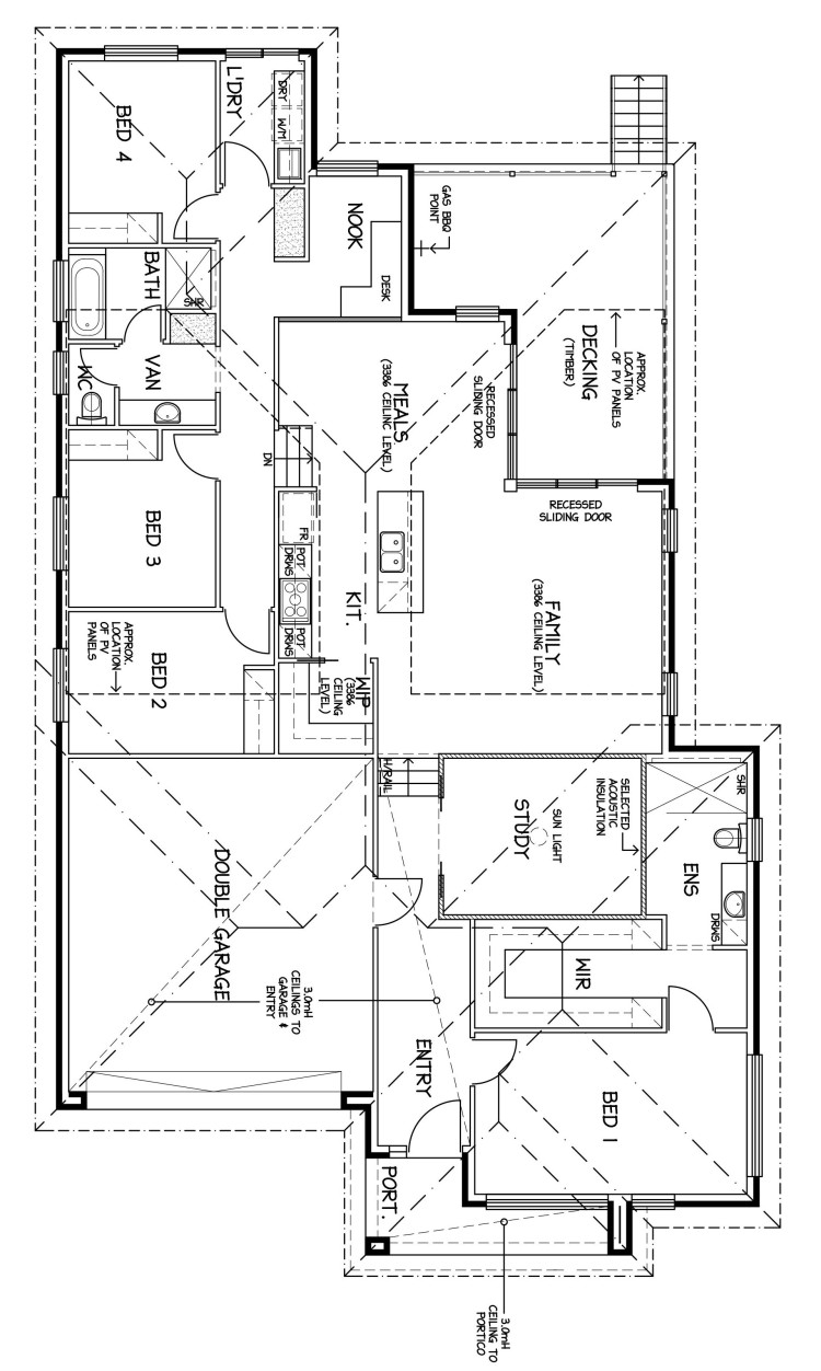
Inclusions:
- 3386mm celling in family, meals, deck, kitchen and WIP.
- 3000mm to entry and garage, 2.7m to rest.
- Includes decking with steps and balustrade with recessed sliding doors.
- Split level design to work with the block and views.
- Land price $300K.
- Includes all joinery as per floor plan with 900mm bulkheads.
- Floor to Ceiling tiles in ENS and bath with shower Niche and Sq set cornice.
- 2.4m high doors throughout, upgraded entry door & cavity doors as per plan.
- Acoustic insulation and sun light to study (Home Theatre).
- Stone bench tops to kitchen and pantry with glass splashback to kitchen.
- Upgraded front façade as per drawings.
- Some Turnkey options can be added.
- Build is fully customisable & will receive Rossdale Homes’ Absolute Fixed Price Guarantee!
- SA Owned & operated builder with over 40 years of building excellence.
Disclaimer: All care has been taken in the preparation of this material. No responsibility is taken for any errors or omissions. Details are subject to change without notification. Images for illustration purposes only. E&OE.
